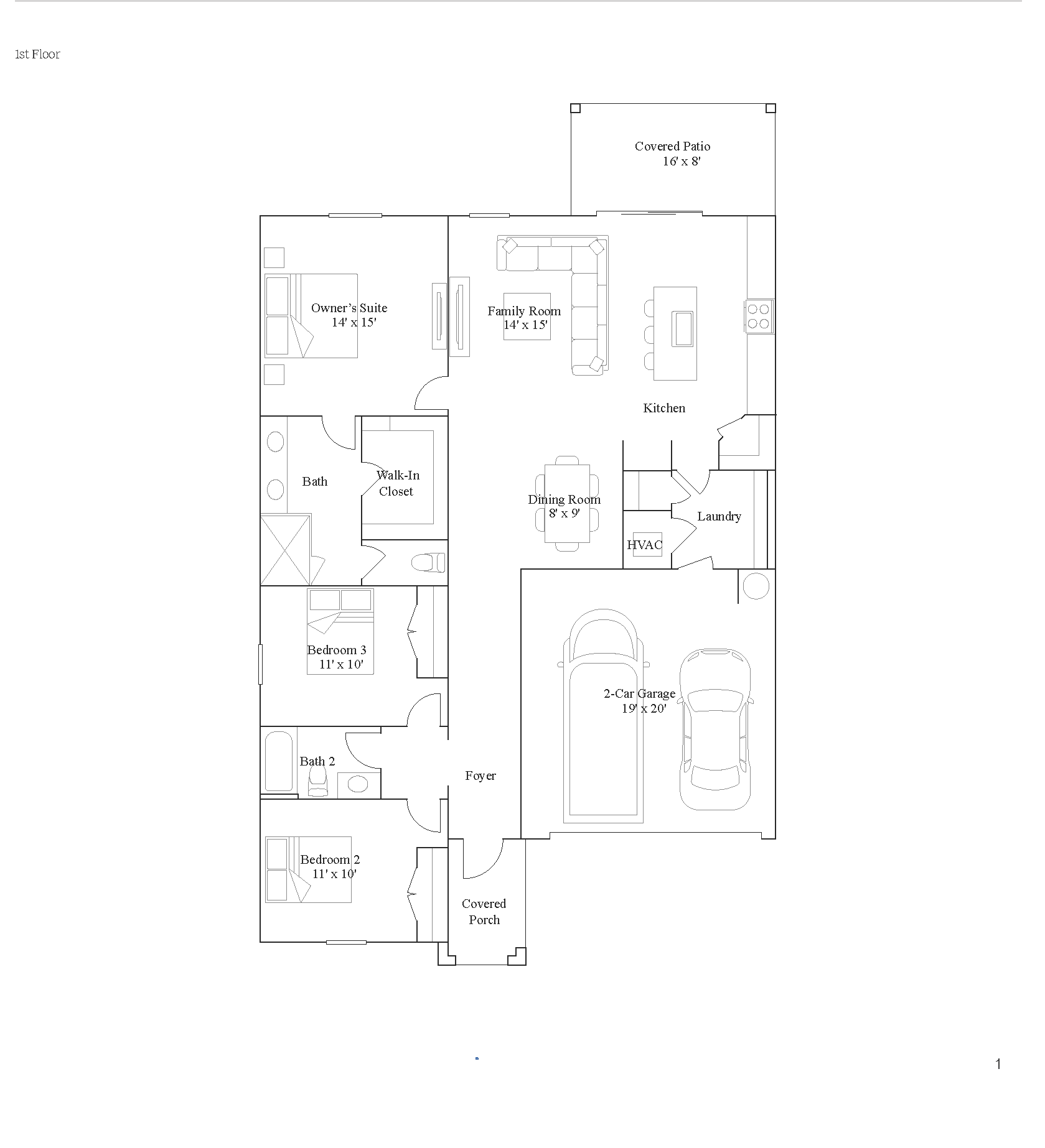
Experience the ultimate in ease and elegance with this brand-new, single-story sanctuary. Designed for a seamless lifestyle, the home opens with a dedicated wing for guests or children, featuring two bright secondary bedrooms.
The heart of the home is a magnificent open-concept Great Room where the modern kitchen—complete with a social center island—flows naturally into the airy dining and family areas. Sliding doors lead you directly to a spacious covered patio, perfect for sunset dinners or morning coffee. Tucked away in its own private corner, the tranquil owner’s suite serves as a true retreat, boasting a spa-inspired bath and a generous walk-in closet.
1,635 sq/ft
3 bed/2 bath
2 car garage
Tuckers Cove
Thank you for your interest in this floor plan. For additional information about this community, floor plans, available homes, and pricing please submit your information below.
